石家庄
[
切换城市
]
|
登录
注册
|
微信版
访问微信版
免费发布信息
|
个人中心
|
网站首页
房产经济
二手房
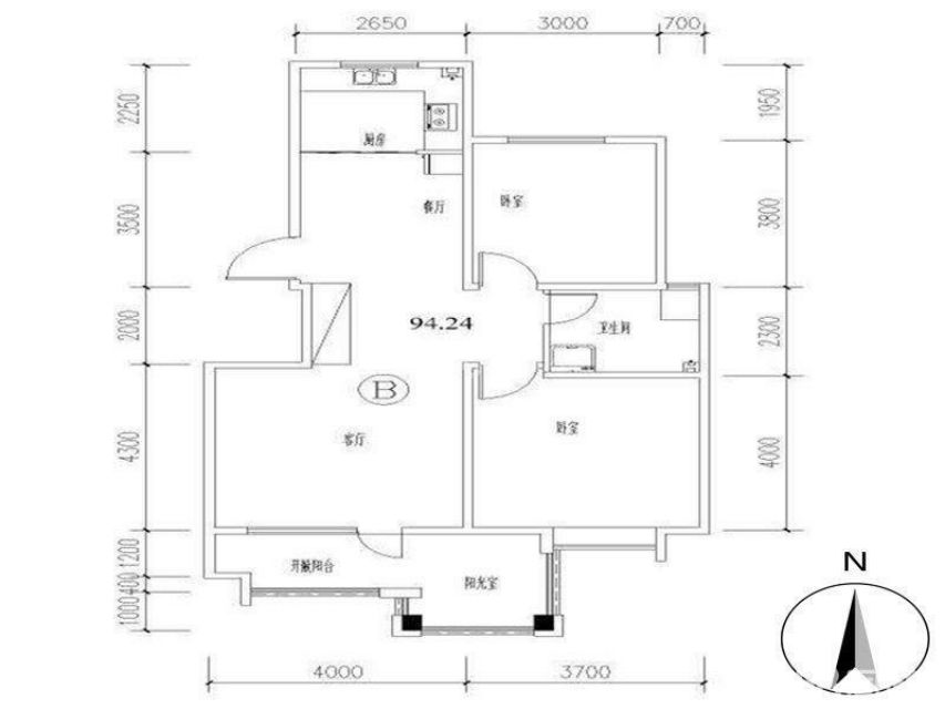
大尚华府,品质洋房,南北通透两居室,采光充足,锯惠来袭
2019-01-09 07:00
939
收藏
收藏到个人中心
保存到桌面
添加到浏览器收藏夹
区域
桥西区
售价
110万
/ 万元
房贷说明
户型
2室2厅1卫
面积
94
/ ㎡
地址
桥西石铜路大尚华府
开发商
联系人
刘晓亮
17073293969
说明描述信息
大尚华府,品质洋房,南北通透两居室,采光充足,锯惠来袭
戚元共享信息技术(集团) | 河北微宝网络科技有限公司 | 河北虹初商贸有限公司 | 河北省工信厅设备管理协会 | 版权所有:戚元共享 Copyright © 2008-2023
支持平台:国家企业信用信息公示系统 | 全国组织机构代码管理中心 | ICP/IP地址/域名信息备案管理系统 | 中网可信网站权威数据库 | 诚信网站数据库查询系统 | 安全联盟信誉档案库
备案编号:
冀ICP备19000345号-1|
96315工商消协信用证
|
冀公网安备:13010502001725
号